Register your interest for Okehampton View
Okehampton View
Okehampton, Devon EX20 1XQ
New phase of 2 bedroom houses now released
Register interestHouse, 2 beds
Discover the Wonder of Okehampton View – New phase of 2 bedroom houses now released!
A beautiful collection of Shared Ownership homes in Okehampton, Devon situated on the edge of Dartmoor National Park surrounded by natural beauty.
Okehampton View is an exciting new development on the fringes of Okehampton that provides all the amenities for modern living without having to travel far. Living at Okehampton View, the dramatic granite moors of Dartmoor are easily accessible as they are within walking distance. This unique area of tors, farmland and rivers is considered one of the most beautiful places in the country.
The town centre is less than a mile down the road, with Exeter just 30 minutes away by car and Plymouth also within commuting distance. There’s a wonderful array of independent stores in the quaint Red Lion Yard and you’ll have a range of supermarkets nearby, Lidl and Costcutter.
Council Tax: TBC
Council tax bands are often not released until the property is complete. If you need any guidance, please get in touch with our Sales Consultants otherwise the local authority or the developer may be able to help.
Outstanding natural beauty at Okehampton View
With the rugged beauty of Dartmoor is on your doorstep and the whole of the West Country is ready to be explored – it’s hard to think of a more attractive place to live.
Whether you fancy spending the day pony trekking, canoeing the River Dart or following the country trails, living at Okehampton View offers outdoor life at its best. From the surfing beaches of the North Coast to the famous restaurants of Padstow, this is a historic and inspiring part of the world to set down roots.
You are well placed to the A30, one of the main roads running through the South West, allowing you easy access to Exeter and, if you head in the other direction, all the way down through Cornwall to Penzance. From Exeter you can link up with the M5 and the rest of the national motorway network. There is also a direct road to Plymouth via Lydford, Tavistock and the beauty of the Tamar Valley.
If you’re ready to explore further afield, Plymouth offers a regular ferry service to Roscoff in France and Bilbao in Spain while Bristol is the closest major airport (an easy drive up the M5). Yet, if you are living at Okehampton View, you might find yourself never wanting to leave an area of such outstanding beauty.
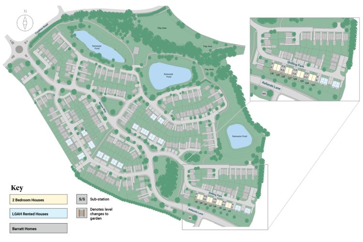
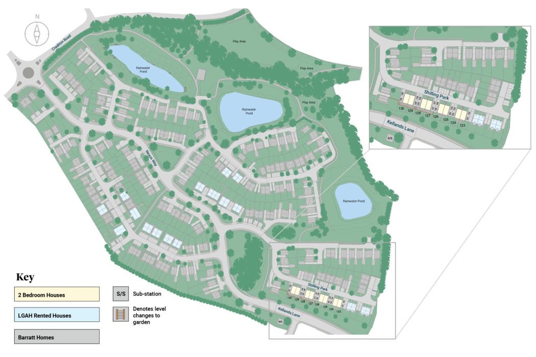
Available plots for
Okehampton View
Okehampton, Devon EX20 1XQ
- Status Available
- Type House
- Beds 2
- Sq ft 841.74
- Floor not applicable
- Full price £230,250
- Example share 25%
- Example share price £57,563
- Service charge PCM £76.93
- Rent PCM £396
- Status Available
- Type House
- Beds 2
- Sq ft 841.74
- Floor not applicable
- Full price £232,500
- Example share 25%
- Example share price £58,125
- Service charge PCM £77.11
- Rent PCM £400
- Status Available
- Type House
- Beds 2
- Sq ft 841.74
- Floor not applicable
- Full price £232,500
- Example share 25%
- Example share price £58,125
- Service charge PCM £77.11
- Rent PCM £400
- Status Available
- Type House
- Beds 2
- Sq ft 841.74
- Floor not applicable
- Full price £234,500
- Example share 25%
- Example share price £58,625
- Service charge PCM £77.26
- Rent PCM £404
- Status Available
- Type House
- Beds 2
- Sq ft 841.74
- Floor not applicable
- Full price £234,000
- Example share 25%
- Example share price £58,500
- Service charge PCM £77.23
- Rent PCM £403
- Status Available
- Type House
- Beds 2
- Sq ft 841.74
- Floor not applicable
- Full price £232,750
- Example share 25%
- Example share price £58,188
- Service charge PCM £77.13
- Rent PCM £401
- Status Available
- Type House
- Beds 2
- Sq ft 841.74
- Floor not applicable
- Full price £232,750
- Example share 25%
- Example share price £58,188
- Service charge PCM £77.13
- Rent PCM £401
- Status Available
- Type House
- Beds 2
- Sq ft 841.74
- Floor not applicable
- Full price £232,750
- Example share 25%
- Example share price £58,188
- Service charge PCM £77.13
- Rent PCM £401
Okehampton View
Your estimated costs
(service charge not included)
Household income
The estimated minimum household income required
Monthly mortgage
The estimated monthly mortgage payments on the share you're purchasing
Monthly rent
The estimated monthly rent on the share that you do not own
Total monthly costs
The total estimated monthly costs of the mortgage and rent payments
The monthly costs (ex service charge) are as follows. They are calculated from mortgage repayments and rent. Please note, this is excluding service charges which vary by property and scheme. Calculations do not include service charges. Service charges will have to be paid and thus part of the calculation that ascertains your affordability. Please contact a member of the team for more information.
Why buy at Okehampton View?
- Okehampton Town Centre and Station 1.1 & 0.7 miles away
- Exeter 23.5 miles away
- Stainless steel multi-function oven, hob and stainless steel chimney hood
- Paved patio area
- Turf to rear garden
- Two parking bays per property
- Solar panels and EV charging point
- NHBC 12 Year Building Warranty
Location
Okehampton View
Eligibility Criteria
- Have a gross household income of no more than £80,000 per annum.
- Be unable to purchase a suitable home to meet your housing needs on the open market.
- Not already own a home or you will have sold your current home before you purchase.
- Be living / working in the defined West Devon Borough Council area.
- Pricelist
- Brochure
- Key Information Documents
| Plot No | Home type | Bed size | SQFT | Full Market Value | 25% Share Value | Rent On Unowned Share PCM | Service Charges Fees PCM |
|---|---|---|---|---|---|---|---|
| 123 | House | 2 | 842 | £230,250 | £57,563 | £396 | £76.93 |
| 124 | House | 2 | 842 | £232,500 | £58,125 | £400 | £77.11 |
| 125 | House | 2 | 842 | £232,500 | £58,125 | £400 | £77.11 |
| 126 | House | 2 | 842 | £234,500 | £58,625 | £404 | £77.26 |
| 127 | House | 2 | 842 | £234,000 | £58,500 | £403 | £77.23 |
| 128 | House | 2 | 842 | £232,750 | £58,188 | £401 | £77.13 |
| 129 | House | 2 | 842 | £232,750 | £58,188 | £401 | £77.13 |
| 130 | House | 2 | 842 | £232,750 | £58,188 | £401 | £77.13 |