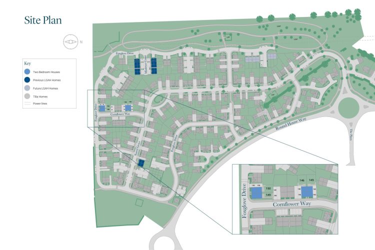
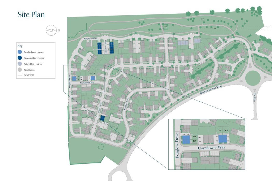
Register your interest for Sorrel Grove
All homes now fully reserved!
House, 2 beds
All homes now fully reserved! Check out our other nearby Norwich schemes
Welcome to Sorrel Grove
An outstanding collection of contemporary 2 bedroom houses available with Shared Ownership. Located in the sought-after village of Cringleford on the outskirts of Norwich and benefits from all the peace and quiet of the countryside only 5 miles from the city centre.
The village itself dates back to Saxon times and has many essentials right on your doorstep including a Tesco Express, a village school, local GP surgery, fitness, football, cricket and tennis facilities. The city centre of Norwich is nearby, making this the perfect balance of town and country.
If you’d prefer to get away from it all, the beautiful Norfolk Broads are under 25 minutes away. Whether it’s boating, fishing or walking, this is the ideal place to escape the trappings of modern life, wind down and relax by the water. Alternatively, take a trip to breathe the fresh sea air in the Norfolk Coast Area of Outstanding Natural Beauty.
Council tax bands are TBC and often not released until the property is complete. If you need any guidance, please get in touch with our Sales Consultants otherwise the local authority or the developer may be able to help.
Perfectly positioned for Norwich and beyond
Getting into the centre of Norwich couldn’t be easier from your new home at Sorrel Grove. The charming, cobbled streets provide everything from your daily essentials to high street names and even a selection of unique antique treasures.
Foodies will love the endless mouth-watering flavours from the diverse variety of restaurants, or if you’re looking for a little culture, you can spend the day admiring the spectacular architecture and rich history of Norwich Cathedral and Norwich Castle, home to the museum and art gallery.
The nearby A47 connects you to the Broads and Great Yarmouth in one direction or Dereham and King’s Lynn in the other. The A11 is also handy, linking you to Thetford and the rest of East Anglia. It joins the M11 at a junction just south of Cambridge and from there, it is a straightforward drive down to London and the M25.
Norwich has a major rail station, giving you the choice of regular services to excellent transport links to Ipswich, Colchester, Chelmsford, Thetford, Ely, Cambridge and London. You are also nearby to Norwich’s own airport, with regular flights to destinations across Europe. Yet, with so much beautiful countryside to explore on your doorstep, perhaps the most important form of transport when you move in at Sorrel Grove, will be your bicycle or walking shoes!
Available plots for
Sorrel Grove
Cringleford, Norfolk NR4 7LT
- Status Available
- Type House
- Beds 2
- Sq ft 797.61
- Floor ground
- Full price £277,500
- Example share 40%
- Example share price £111,000
- Service charge PCM £76.75
- Rent PCM £382
Sorrel Grove
Your estimated costs
(service charge not included)
Household income
The estimated minimum household income required
Monthly mortgage
The estimated monthly mortgage payments on the share you're purchasing
Monthly rent
The estimated monthly rent on the share that you do not own
Total monthly costs
The total estimated monthly costs of the mortgage and rent payments
The monthly costs (ex service charge) are as follows. They are calculated from mortgage repayments and rent. Please note, this is excluding service charges which vary by property and scheme. Calculations do not include service charges. Service charges will have to be paid and thus part of the calculation that ascertains your affordability. Please contact a member of the team for more information.
Why buy at Sorrel Grove?
- Zanussi electric single oven, gas hob and cooker hood
- Zanussi integrated fridge/freezer
- Zanussi integrated washer/dryer
- Zanussi integrated dishwasher
- Turf to rear garden with garden storage
- Paved patio area
- Two parking bays per home
- 12-year NHBC build warranty
Location
Sorrel Grove
Eligibility Criteria
- Have a gross household income of no more than £80,000 per annum
- Be unable to purchase a suitable home to meet your housing needs on the open market
- Not already own a home or you will have sold your current home before you purchase
- Residents with a connection to South Norfolk will be prioritised
- Pricelist
- Brochure
| Plot No | Home type | Bed size | SQFT | Full Market Value | 40% Share Value | Rent On Unowned Share PCM | Service Charges Fees PCM |
|---|---|---|---|---|---|---|---|
| 149 | House | 2 | 798 | £277,500 | £111,000 | £382 | £76.75 |